Quadrilocale in vendita

Bassano Del Grappa, Viale Venezia - San Marco Madonnina
€ 186.000
4 locali 4 locali
137 Mq 137 Mq
2 bagni 2 bagni

Quadrilocale in vendita

Bassano Del Grappa, Viale Venezia - San Marco Madonnina

Descrizione annuncio

NOSTRA ESCLUSIVA//VIALE VENEZIA

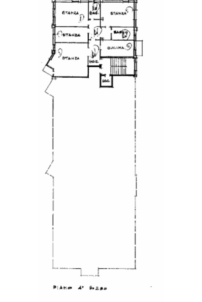
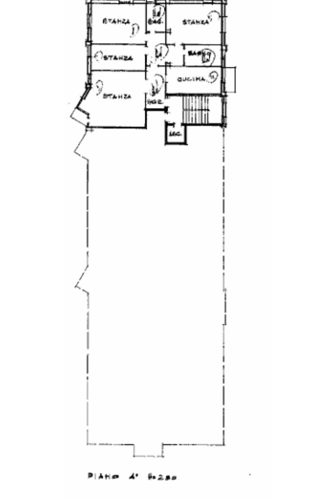
Nella Via più conosciuta di Bassano del Grappa, proponiamo un appartamento di 137 mq ca situato al quarto piano di un edificio dotato di ascensore.

Questa proprietà, costruita nel 1960, offre un'opportunità unica per chi desidera personalizzare la propria casa grazie alla possibilità di ristrutturazione.

L'appartamento è composto da cucina separata dal soggiorno, 2 camere matrimoniali e una camera singola, ideali per famiglie o per chi necessita di spazio aggiuntivo. Sono presenti due bagni finestrati, che garantiscono comfort e praticità. L'appartamento è dotato di riscaldamento autonomo.

La posizione strategica consente di raggiungere facilmente il centro, offrendo accesso a tutti i servizi essenziali.

Completa la proprietà un garage, che rappresenta un valore aggiunto per chi cerca comodità e sicurezza per il proprio veicolo.

Cosa aspetti?

Per informazioni e visite previo appuntamento in ufficio.

COME CONTATTARCI
Chiamaci al numero 0424 514970

Mail: vihp1

Seguiteci sui nostri canali social, sarete così aggiornati sulle nostre proposte di vendita e di locazione!

Mostra tutto

Nelle vicinanze

Trasporto pubblico Trasporto pubblico
Bassano del Grappa
Bassano del Grappa
380 m
Bassano - Viale Venezia 1^
Bassano - Viale Venezia 1^
80 m
Bassano - Via IV Armata
Bassano - Via IV Armata
100 m
Ricariche auto elettriche Ricariche auto elettriche
Bassano Piazzale Trento | EnelX
620 m
EnelX Parcheggio Gerosa
1,6 Km
Magazzini Nico
3,0 Km
Scuole Scuole
Sede staccata Brocchi
300 m
Scuole medie Vittorelli Succursale
390 m
Elementari San Vito
610 m
Mazzini elementari
680 m
Scuola Media Vittorelli Bassano del Grappa
720 m
Farmacia Farmacia
Jacopo Da Ponte
530 m
Erboristeria Madonna della Salute Martino
700 m
Farmacia Carpenedo
730 m
Alle due Colonne
800 m
Farmacia dall'Oglio
820 m
Ospedali Ospedali
Ospedale San Bassiano - ULSS 7 Pedemontana
2,4 Km
Supermercati Supermercati
Conad City
250 m
Da Adriano Gastronomia
670 m
Aliper
830 m
Latterie Vicentine
1,0 Km
Minimarket Alimentari Da Marco
1,1 Km
Negozi Negozi
Panificio Pasticceria Marinoni
500 m
Forno Moretti
540 m
Dalle Nogare
580 m
Maglificio Mazzonetto
590 m
Cenere G.B.
630 m
Bar Bar
l'Angolo
110 m
Naxos
130 m
La Dolce Vita
130 m
Shely's bar
210 m
Bar
390 m
Ristoranti Ristoranti
La Terrazza Pizzeria
310 m
Trattoria Da Alice
310 m
Ristorante Giapponese SaKura
430 m
338
430 m
Cinese Co Co
430 m
Mostra tutto

Caratteristiche

Rif.:
61188018
Piano:
4 di 5 con ascensore (Piano alto)
Box:
1
Terrazzi:
1
Camere da letto:
3
Arredamento:
Assente
Mostra tutto
Prezzo Prezzo
€ 186.000
Rata mutuo Rata mutuo
€ 883 / mese
Spese annue Spese annue
€ 900
Proponi il tuo prezzoProponi il tuo prezzo

Classe Energetica

G
G
G
G
G
G
G
G
G
EP invernale del fabbricato:
EP estiva del fabbricato:
Anno di costruzione:
1960
Riscaldamento:
Autonomo
Tipo impianto:
A radiatori
Tipo alimentazione:
Metano

Ti interessa visionare l'immobile?

Fissa un appuntamento  Fissa un appuntamento

Richiedi informazioni

Clicca su Leggi per aprire l'informativa
* Questi campi sono obbligatori

Calcola il tuo mutuo

Semplice e senza impegno
Anticipo

( % )
Mutuo

( % )

pochi semplici passi

inserisci i tuoi dati
Questionario completato
Grazie per aver richiesto un appuntamento senza impegno con un nostro Consulente del Credito e Assicurativo.

Hai inserito correttamente tutti i dati necessari e a breve riceverai una e-mail con un link da convalidare per inviare i tuoi dati.
Affiliato
Studio Bassano Est Srl
Via Passalacqua, 68 36061 Bassano Del Grappa (VI)

Il nostro staff


  • Edoardo Maria Cunzo
    Responsabile

  • Andreanicole Bizzotto
    Affiliata

  • Samuel Bizzotto
    Collaboratore

  • Martina Gusella
    Coordinatrice

  • Daniel Simonetto
    Collaboratore
Via Passalacqua, 68 36061 Bassano Del Grappa (VI)
Zona: Bassano del Grappa Est
Mostra su mappa
Orari: Lunedì - Venerdì 8.30/12.30 - 14.30/19.30. Sabato 8.30/12.30 e pomeriggio su appuntamento.
Affiliato
Studio Bassano Est Srl
Via Passalacqua, 68 36061 Bassano Del Grappa (VI)

2026 Tecnocasa Franchising S.p.A. - P. IVA 08365160152 - Via Monte Bianco 60/A 20089 Rozzano (MI). Ogni agenzia ha un proprio titolare ed è autonoma. Privacy policy | Policy utilizzo | Cookie policy