Trilocale in vendita

Bassano Del Grappa, Via Monte Grappa - San Vito
€ 123.000
Prezzo aggiornato
3 locali 3 locali
76 Mq 76 Mq
1 bagno 1 bagno

Trilocale in vendita

Bassano Del Grappa, Via Monte Grappa - San Vito

Descrizione annuncio

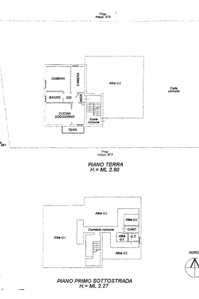
Nel cuore della località di San Vito, a Bassano del Grappa, è disponibile un appartamento al piano rialzato in vendita.

La zona giorno luminosa e accogliente affaccia sul terrazzino, mentre la zona notte comprende una camera matrimoniale e una singola, ideali per una famiglia o per chi desidera uno spazio aggiuntivo per ospiti o da adibire a studio. L'appartamento dispone di un bagno finestrato servito da doccia.

A completare la proprietà ci sono una cantina, la centrale termica ed un garage privato in grado di offrire comodità e sicurezza per la vostra auto.

Recentemente, sono stati sostituiti la caldaia e i serramenti esterni, garantendo efficienza energetica e comfort abitativo.

L'immobile rappresenta una soluzione interessante per chi cerca una casa funzionale in una zona tranquilla e ben servita, oppure una soluzione da investimento.

Per informazioni e visite previo appuntamento in ufficio.

COME CONTATTARCI
Chiamaci al numero 0424 514970

Mail: vihp1

Seguiteci sui nostri canali social, sarete così aggiornati sulle nostre proposte di vendita e di locazione!

Mostra tutto

Nelle vicinanze

Trasporto pubblico Trasporto pubblico
Bassano del Grappa
Bassano del Grappa
1,4 Km
Bassano - Viale Monte Grappa 2^
Bassano - Viale Monte Grappa 2^
30 m
Bassano - Viale Monte Grappa 3^
Bassano - Viale Monte Grappa 3^
140 m
Ricariche auto elettriche Ricariche auto elettriche
Bassano Piazzale Trento | EnelX
1,7 Km
EnelX Parcheggio Gerosa
2,6 Km
Scuole Scuole
Centro Parrocchiale
710 m
Sede staccata Brocchi
790 m
Elementari San Vito
790 m
Elementari
890 m
Scuole
1,1 Km
Farmacia Farmacia
Farmacia del Grappa
590 m
Jacopo Da Ponte
1,6 Km
Farmacia
1,6 Km
Farmacia di Fellette
1,8 Km
Erboristeria Madonna della Salute Martino
1,8 Km
Supermercati Supermercati
Vendita Formaggi e vini La Casera
50 m
Lidl
400 m
Aliper
430 m
Biosapori
480 m
Prix
510 m
Negozi Negozi
Al Vecchio Forno
430 m
Negozi
490 m
Panificio Fontana
600 m
Panificio Pasticceria Marinoni
920 m
Dinosauro abbigliamento
1,0 Km
Bar Bar
Bar Tabacchi La Sosta
290 m
Bar Tabacchi Primavera
360 m
Delizie da Tina
360 m
Fork Bar
380 m
Abricot wine bar
400 m
Ristoranti Ristoranti
Bar Trattoria Da Angelo
220 m
Pizzeria da Forlin
700 m
Ristorante Giapponese SaKura
710 m
Pizzeria alla Torre
780 m
La Terrazza Pizzeria
810 m
Mostra tutto

Caratteristiche

Rif.:
61190085
Piano:
1 di 3 (Piano rialzato)
Box:
1
Terrazzi:
1
Camere da letto:
2
Arredamento:
Parziale
Mostra tutto
Prezzo Prezzo
€ 123.000
Rata mutuo Rata mutuo
€ 584 / mese
Spese annue Spese annue
€ 0
Proponi il tuo prezzoProponi il tuo prezzo

Classe Energetica

G
G
G
G
G
G
G
G
G
Anno di costruzione:
1972
Riscaldamento:
Autonomo
Tipo impianto:
A radiatori
Tipo alimentazione:
Metano

Prezzo ridotto di €1 (4%%)

Ti interessa visionare l'immobile?

Fissa un appuntamento  Fissa un appuntamento

Richiedi informazioni

Clicca su Leggi per aprire l'informativa
* Questi campi sono obbligatori

Calcola il tuo mutuo

Semplice e senza impegno
Anticipo

( % )
Mutuo

( % )

pochi semplici passi

inserisci i tuoi dati
Questionario completato
Grazie per aver richiesto un appuntamento senza impegno con un nostro Consulente del Credito e Assicurativo.

Hai inserito correttamente tutti i dati necessari e a breve riceverai una e-mail con un link da convalidare per inviare i tuoi dati.
Affiliato
Studio Bassano Est Srl
Via Passalacqua, 68 36061 Bassano Del Grappa (VI)

Il nostro staff


  • Edoardo Maria Cunzo
    Responsabile

  • Andreanicole Bizzotto
    Affiliata

  • Samuel Bizzotto
    Collaboratore

  • Martina Gusella
    Coordinatrice

  • Daniel Simonetto
    Collaboratore
Via Passalacqua, 68 36061 Bassano Del Grappa (VI)
Zona: Bassano del Grappa Est
Mostra su mappa
Orari: Lunedì - Venerdì 8.30/12.30 - 14.30/19.30. Sabato 8.30/12.30 e pomeriggio su appuntamento.
Affiliato
Studio Bassano Est Srl
Via Passalacqua, 68 36061 Bassano Del Grappa (VI)

2026 Tecnocasa Franchising S.p.A. - P. IVA 08365160152 - Via Monte Bianco 60/A 20089 Rozzano (MI). Ogni agenzia ha un proprio titolare ed è autonoma. Privacy policy | Policy utilizzo | Cookie policy