Palazzina in vendita

Pove Del Grappa, Via Zanchetta
€ 550.000
400 Mq 400 Mq
6 bagni 6 bagni

Palazzina in vendita

Pove Del Grappa, Via Zanchetta

Descrizione annuncio

NUOVA ESCLUSIVA//POVE DEL GRAPPA.

Siamo a proporre intera palazzina composta n. 3 unità abitative con adiacente un lotto di 1000 mq ca.

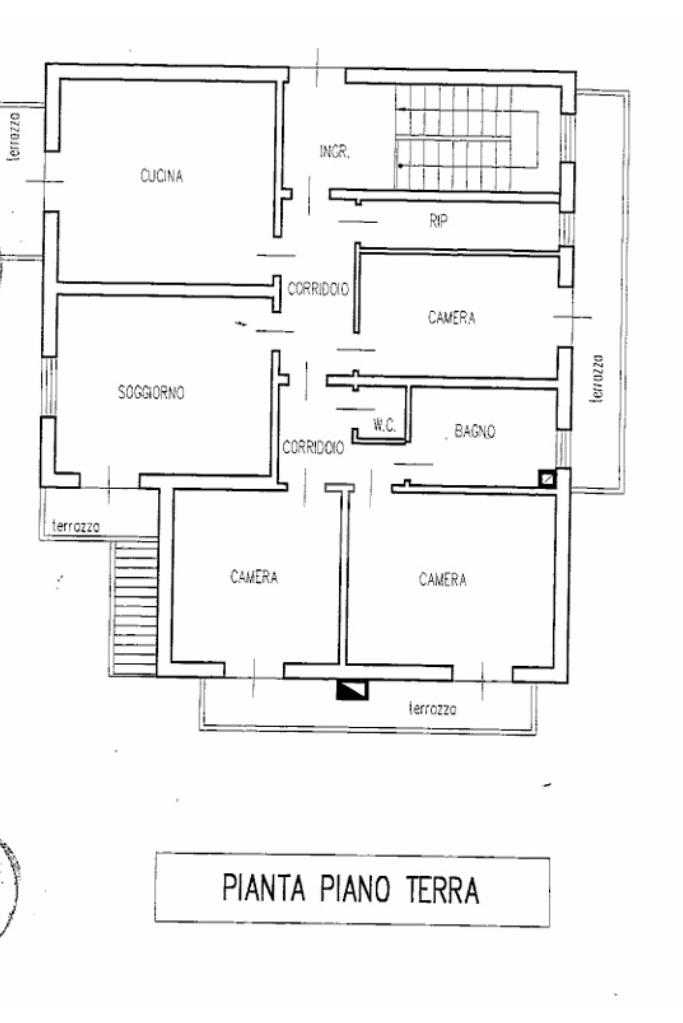
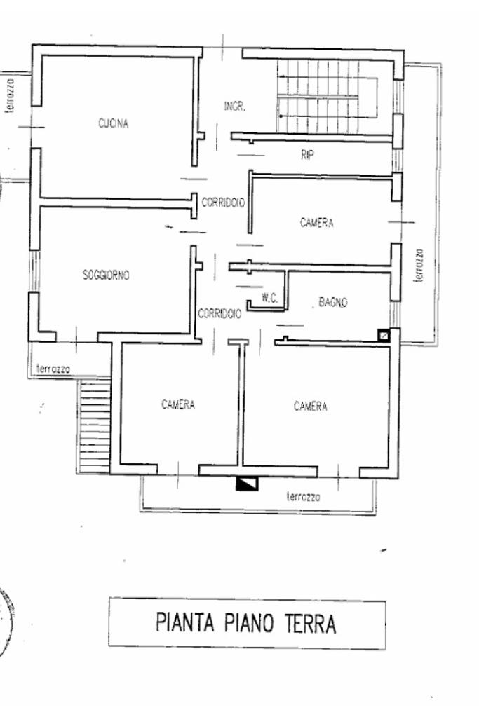
Le unità si compongono di:

- n. 1 mini appartamento al piano terra di modeste metrature interne con posto auto scoperto;

- n. 2 appartamenti speculari composti da cucina separata dal soggiorno esposti ad ovest con due terrazze, tre camere di ampie metrature tutte terrazzate, bagno di servizio cieco, secondo bagno finestrato ed un ripostiglio. Completa la proprietà un garage doppio in lunghezza, una privata ed una cantina.

Gli appartamenti sono regolarmente affittati da anni da inquilini referenziati.

L' immobile si trova in buone condizioni grazie alla continua manutenzione da parte dei proprietari.

Gli interventi più importanti stati fatti sono:

sostituzione caldaie a consensazione nel 2021, cappotto parte a nord nel 2010, sostituzione tubi impianti idraulici nei primi anni 2000, rifacimento impianti elettrici nei primi anni 2000.

Per quanto riguarda il lotto: 1000 mq ca di cui 626 mc. Intevento edilizio diretto.

Per informazioni e visite previo appuntamento in ufficio.

COME CONTATTARCI
Chiamaci al numero 0424 514970

Mail: vihp1

Seguiteci sui nostri canali social, sarete così aggiornati sulle nostre proposte di vendita e di locazione!

Mostra tutto

Nelle vicinanze

Trasporto pubblico Trasporto pubblico
Solagna
Solagna
1,4 Km
Bassano - Via Tozzi x Via Canova
Bassano - Via Tozzi x Via Canova
310 m
Pove - Incrocio S.S. 47
Pove - Incrocio S.S. 47
510 m
Ricariche auto elettriche Ricariche auto elettriche
Eneldrive sul Brenta
2,4 Km
Scuole Scuole
Centro di formazione professionale Marco Polo
1,6 Km
Scuole
1,6 Km
Istituto Agrario Parolini
1,9 Km
Scuola Elementare di Romano
2,8 Km
New Cambridge institute
3,0 Km
Farmacia Farmacia
Farmacia
1,7 Km
Farmacia di Romano
2,7 Km
Supermercati Supermercati
Supermercati
1,1 Km
Coop
1,5 Km
Negozi Negozi
panificio pasticceria FORNER
2,5 Km
Negozi
2,7 Km
Bar Bar
Bar
620 m
Bar Gelateria Romanelle
830 m
Gino's
1,1 Km
Bar Alpi
1,7 Km
Euro Bar
1,7 Km
Ristoranti Ristoranti
Ottocento bistrot
550 m
Pizzeria Alla Stella
1,1 Km
Cà Foresto
1,5 Km
Conca D'Oro
2,1 Km
Pizzeria Arcobaleno
2,1 Km
Mostra tutto

Caratteristiche

Rif.:
60788450
Piano:
4 di 4 (Piano su più livelli)
Box:
2
Posti auto:
1
Balconi:
1
Terrazzi:
4
Mostra tutto
Prezzo Prezzo
€ 550.000
Rata mutuo Rata mutuo
€ 2.611 / mese
Spese annue Spese annue
€ 0
Proponi il tuo prezzoProponi il tuo prezzo

Classe Energetica

F
F
F
F
F
F
F
F
F
Anno di costruzione:
1970
Riscaldamento:
Autonomo
Tipo impianto:
A radiatori
Tipo alimentazione:
Metano

Ti interessa visionare l'immobile?

Fissa un appuntamento  Fissa un appuntamento

Richiedi informazioni

Clicca su Leggi per aprire l'informativa
* Questi campi sono obbligatori

Calcola il tuo mutuo

Semplice e senza impegno
Anticipo

( % )
Mutuo

( % )

pochi semplici passi

inserisci i tuoi dati
Questionario completato
Grazie per aver richiesto un appuntamento senza impegno con un nostro Consulente del Credito e Assicurativo.

Hai inserito correttamente tutti i dati necessari e a breve riceverai una e-mail con un link da convalidare per inviare i tuoi dati.
Affiliato
Studio Bassano Est Srl
Via Passalacqua, 68 36061 Bassano Del Grappa (VI)

Il nostro staff


  • Edoardo Maria Cunzo
    Responsabile

  • Andreanicole Bizzotto
    Affiliata

  • Samuel Bizzotto
    Collaboratore

  • Martina Gusella
    Coordinatrice

  • Daniel Simonetto
    Collaboratore
Via Passalacqua, 68 36061 Bassano Del Grappa (VI)
Zona: Bassano del Grappa Est
Mostra su mappa
Orari: Lunedì - Venerdì 8.30/12.30 - 14.30/19.30. Sabato 8.30/12.30 e pomeriggio su appuntamento.
Affiliato
Studio Bassano Est Srl
Via Passalacqua, 68 36061 Bassano Del Grappa (VI)

2026 Tecnocasa Franchising S.p.A. - P. IVA 08365160152 - Via Monte Bianco 60/A 20089 Rozzano (MI). Ogni agenzia ha un proprio titolare ed è autonoma. Privacy policy | Policy utilizzo | Cookie policy